Lighting Design

Lighting Design

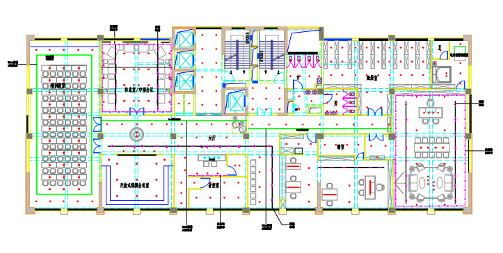
Lighting design, including fixture point maps, fixture size positioning maps, lighting circuit diagrams, and lighting simulation illuminance calculations.

Contacts

Add: Gaoxin East Road, Jiangmen, Guangdong

Tel: +86 18824027929

E-mail: info@efenso.com

Website: https://www.efenso.com

Copyright © Jiangmen Efenso Lighting Co., Ltd. All Rights Reserved.    Sitemap   XML